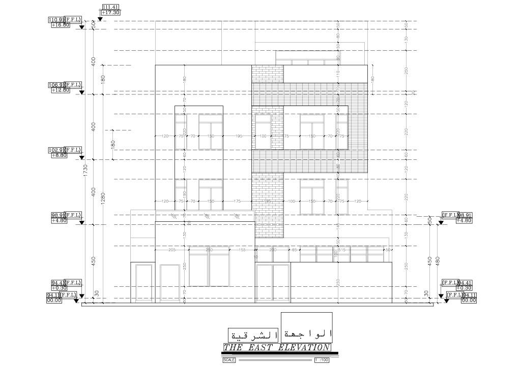
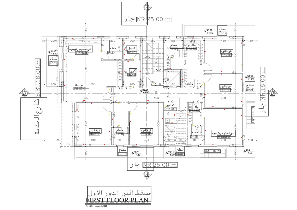
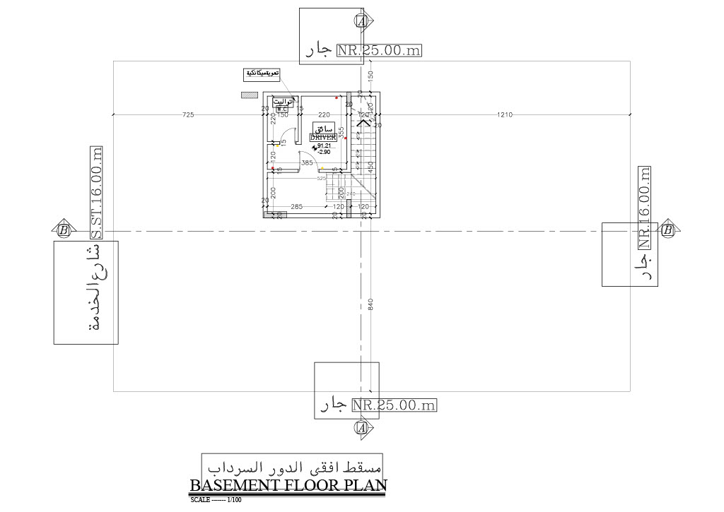
شركة دار لوران لتشييد المباني

منزل إبراهيم جاسم أحمد الكندري

اتصال
WhatsApp